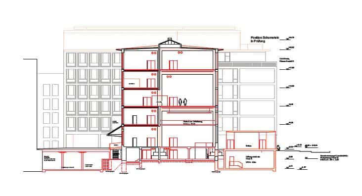
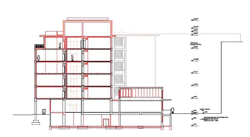
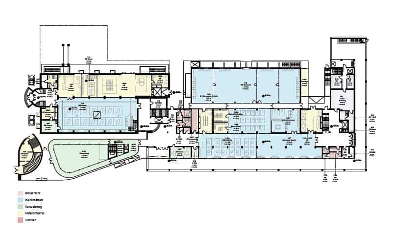
Im Rahmen der “Schulbauoffensive” der Stadt München wurde nun nach Jahren der Planung und Suche nach Ausweichquartieren für die betroffenen Schulen (unsere Schule bezog die Praxishallen in Aubing zum SJ 2018/19) tatsächlich mit den Arbeiten begonnen, die sich ca. fünf Jahre hinziehen werden. Aktuell soll zum Schuljahresbeginn 2023/24 feierlich der Wiedereinzug begangen werden. Neben der Sanierung der Gebäudeteile werden zusätzlich eine Aula für Veranstaltung auf Seite der Luisenstraße als auch ein Keller unter dem Innenhof errichtet.
